Quadrilocale
Residenza Gli Aceri

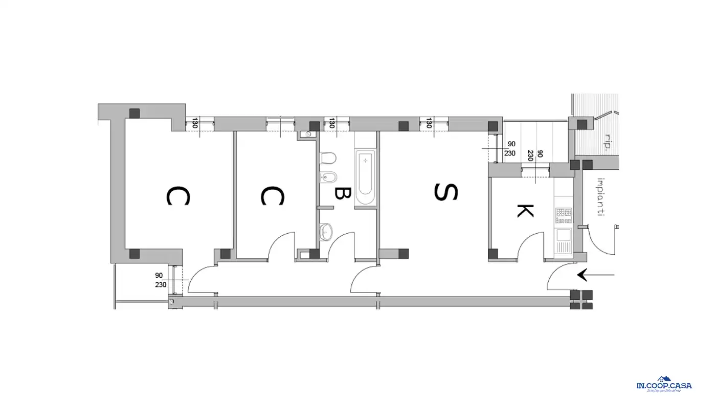
Appartamento di 82 mq, composto da ingresso, cucina, sala, due camere da letto, bagno, ripostiglio e balconi. Compreso nel canone Box Auto e cantina. Edificio di nuova costruzione in classe energetica A3.
410€/mese

Tipologia Quadrilocale

Residenza

Gli Aceri

Camere

2

Bagni

1

Cucina

Si

Soggiorno

Si

Box Auto

si

Quadrilocale in Residenza Gli Aceri

Complesso di nuova costruzione composto da 36 unità abitative di varie metrature con cantina, box auto e posti auto esterni. Canoni sostenibili e ridotte spese condominiali con contratto a tempo indeterminato e futura opzione di acquisto. Classe energetica A3.

Dove si trova l'appartamento
Indirizzo:

Via Guido Ginella, 1 - 14100 Asti